★美品ホシザキ45kg製氷機 IM-45M-2 2020年 ★直接引き取り歓迎★ ホシザキ 45kg製氷機 IM-45M-2 | 無限堂厨房ネットショップ
(5780件)
Pontaパス特典
サンキュー配送
73051円(税込)
731ポイント(1%)
Pontaパス会員ならさらに+1%ポイント還元!
送料
(
)
5762
配送情報
お届け予定日:2026.04.10 16:28までにお届け
※一部地域・離島につきましては、表示のお届け予定日期間内にお届けできない場合があります。
ロットナンバー
86617145807
お買い物の前にチェック!
Pontaパス会員なら
ポイント+1%
ポイント+1%
商品説明








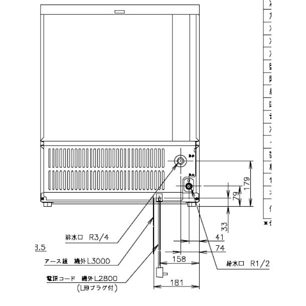
ホシザキ45kg製氷機 IM-45M-2 2020年式★直接引き取り歓迎★サイズ:高さ80㎝ 幅63 ㎝ 奥行45㎝ 引き取り場所:愛知県みよし市2020年のものですが、2年くらいしか使用しておりません!動作確認クリーニング済みです!中古品の為多少の傷汚れ等あるのでご理解お願いします!神経質の方はご自身で拭くなどしてからお使いください!写真を見てからご購入お願いします!★領収書発行可能!登録番号あり!★運送のご希望は、送料お調べいたします。★県内であれば3000円〜運搬可能です!
| カテゴリー: | 生活家電・空調>>>冷蔵庫・冷凍庫>>>製氷機 |
|---|---|
| 商品の状態: | 目立った傷や汚れなし","細かな使用感・傷・汚れはあるが、目立たない |
| ブランド: | HOSHIZAKI |
| 配送料の負担: | 着払い(購入者負担) |
| 配送の方法: | 未定 |
| 発送元の地域: | 愛知県 |
| 発送までの日数: | 1~2日で発送 |
レビュー
商品の評価:




4.4点(5780件)
- しで8464
- 2021.4.26現在、急激に冷えが悪くなりました。当然保証期間も過ぎてますしどこに修理に出したら良いか。 夏までには別メーカーを買わないと。もうちょい持つと思ってたので残念です。
- らんさー0509
- 注文番号 315288-20210604-00276832 注文時の質問にもしっかり対応してくれて親切でした。 評価も良かったので購入しました。 2Lのペットボトルが縦置き可能で、30Lの収納力、 100V&車載12V&24Vまで対応です。 コンプレッサーの音気にならないです。 素晴らしい商品です。 試運転確認OKでした。 後はどのくらいの耐久性があるかです。 レビューを書くと、プラス1年で計2年になるので安心です。 何かありましたら宜しくお願い致します。
- t_raku_s
- 到着した第一印象はかっこいい! 到着から数日、部屋で冷蔵庫として使用した感想は、インド設定がとても楽、音は思っていたより静かで、ベッドサイドにいつも冷え冷えの飲み物がある便利さ、素晴らしいです。 週末になり、サーフィンをするために車に積んで海へ。 移動中は車の電源から、海に入っている最中はポータブル電源につなぎましたが、日向で熱くなった車内に置いてもマイナス16度をキープ。 氷は溶けませんでした。 実は高性能で有名なアメリカのYのクーラーボックスも使っていますが、さすがのYもこの時期の車の中では、氷も溶け出しますが、この冷蔵冷凍庫は全く問題ありません。 今度はキャンプに持って行こうと思います。 これがあれば、キャンプ場でアイスクリームを食べたり、冷凍食材をキープしたり出来るので、楽しみの幅が広がります。 デザインもキャンプサイトに映えるデザインですので持って行くのが楽しみです。
- イイダイチ
- 迅速な対応ありがとうございました。梱包もしっかりしていました。
- くーがー1551
- 早速、車で使用しました。DC12V、100V両方の電源で試しました。 しっかりと冷えて大満足です。
- ふぅちゃん_s
- 受注番号]315288-20210424-00142703 車中泊に使用する為に購入しました。 試運転で、問題なく−22℃まで下がりました。 これから、どんどん使っていこうと思います。
- クロ2902
- 【注文番号】384459-20210427-00072712 注文して、すぐに届きました。 デザインは、とてもかっこいいです。 32lを購入しましたが思ったより小さく、高さだけの違いなので42lでも良かったかなと。 冷蔵、冷凍は、文句無し!ビールもすぐにキンキンになります。 他の人のレビューにもありますが、フタがゆるい感じなので、大丈夫なのかなと不安はあります。とりあえずは冷えてはいます。 前面パネル等隙間があったりと、若干、雑な部分もあります。 ポータブル電源で使用時、室温22度、設定2度Hiで、12時間で約140whの消費でした。多いのか少ないのか分かりませんが、当方のポータブル電源540whで1泊2日のキャンプなら十分に持ちそうです。 電源を切った後の保冷力も、もう少しあると良い気がします。 総じて、満足度はかなり高く、友人にもおすすめしました。
- Hideyuki1216
- [受注番号]384459-20210427-00065715 小さい冷蔵スペースには350mlが縦置きで8本、その上に500mlのペットボトルが2本入りました。 電源を入れて20℃表示からエコモード、1時間後には本体表示で-10℃でした。設定は-20℃、そのまま500mlペットボトルに水を八分目までいれ、朝にはカチカチ状態(約10時間後)。 自分の使用目的には十分な性能です。 作動音やら細かい作りや納品時の汚れなどは人それぞれ評価基準が違うと思いますので、わたくしはノーコメントとさせて頂きます。
- あゆむ411
- 注文番号:384459-20210427-00060730 冷蔵庫としての機能は問題なく、よく冷えてます。 見た目もかっこよく、満足しています。 あとは、耐久性がわからないので、★4個にしました。 これからの、アウトドアシーズンで活躍してくれると思います。
- banbanzai38
- 夏に海へ旅行計画をしており、宿泊先に冷凍庫が無いため保冷剤を凍らせる目的で購入。 当日凍らなかったじゃ話にならないので、現在チェックしてる途中ですが、一般的なジェルのような保冷剤であれば問題なく使えそう。 ただ、いつも使ってる強力な保冷剤(液体が入ってるタイプ)は凍るまでにかなりの時間を必要としてます。上手に計画して使わないと無意味な買い物になる…現時点ではチェック段階なので☆3。 旅行後に、また☆変更します。
- ももぞう5174
- 意外と音が低い、-3℃で設定してみた。最初は冷えるまで結構時間が掛かっていたが其後は安定している。唯移動時には持運びは矢張り重いので肩紐の様な物が付いていれば良いと思う。此れから暑さの中車での移動には大いに役立ちそうだ。
- ちむたむ174
- 設定温度をー20度にしますがしばらくするとー10度程になり、いったりきたりして温度が安定しません。そして、霜がたくさんつきます。保冷剤は凍りません。この先暑くなりますが大丈夫でしょうか?
- ななかまどの雪
- 自宅に届いて 早速試してみたら即冷えでした。次はトラックで相棒にします。
- manmaru3192
- 室温20度での−18度の設定で約30分で庫内ー12度ぐらいになりました。しかし容量が小さいので開放すると速攻で外気が入りますので冷凍は移送用の用途のみです。たくさんは入りませんが見た目はカッコいいです。
- ノアちゃん521
- 凄くいい商品です。 仕事がら使うひんどが多いので嬉しいです。 ありがとうございます。
すべて見る
お店の情報
7,367
連絡・応対
4.3
配送スピード
4.3
梱包
4.3










